Villa singola in vendita a Roma in Via Boezi, 14-16
Villa indipendente In Vendita a Roma, nella zona residenziale di Infernetto, libera al rogito.
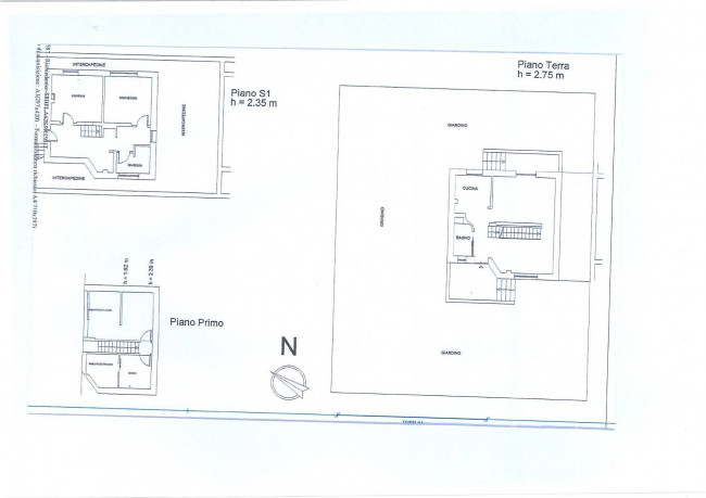
La proprietà si sviluppa su una superfice totale di circa 146 mq, con circa 300 mq di giardino.
Si sviluppa su tre piani e dispone di 6 locali, tra cui 3 camere, soggiorno con angolo cottura e 3 bagni, perfetti per ospitare una famiglia.
L'abitazione è dotata di riscaldamento autonomo a metano, garantendo un ottimo comfort termico in ogni stagione.
La villa è in ottime condizioni, ristrutturata con attenzione ai dettagli, pronta per essere abitata fin da subito.
La sua esposizione a nord est, sud ovest permette di godere di una luminosità naturale durante tutto il giorno.
La cucina a vista è moderna e funzionale, ideale per chi ama cucinare in compagnia.
Un terrazzo e un ampio giardino privato molto confortevole sono a disposizione per trascorrere piacevoli momenti all'aperto con amici e familiari.
Inoltre, è presente un posto auto scoperto e una cantina molto ampia per garantire ulteriori comodità.
La villa si sviluppa su tre piani, offrendo spazi ampi e ben distribuiti per il massimo comfort.
Una fantastica opportunità, la villa è situata in un contesto silenzioso ma ben collegato ai principali servizi commerciali e mezzi pubblici a 300 mt. che collegano l'abitazione alla metro di Ostia Lido ed Eur Fermi. classe Energetica E.
Richiesta € 435.000.
"La nostra Agenzia mette a vostra disposizione tutti i servizi necessari per procedere ad una compravendita in totale sicurezza grazie ad una collaborazione con diversi studi professionali: consulenza creditizia in sede previo appuntamento, servizi tecnico-catastali-urbanistici con tecnici affiliati, consulenza notarile con possibilità di rogito in sede, preventivi di ristrutturazione con ditte specializzate e certificate.
"I DATI INDICATI NON COSTITUISCONO ELEMENTO CONTRATTUALE
Per questo immobile puoi contattare:
Prestige
