Cascina/Casale in vendita a Pomezia in Via Delle Monachelle, 76
Casale d'Epoca a Pomezia L'eleganza senza tempo di un sogno rurale.
Nel cuore della campagna romana, dove il silenzio si intreccia con il profumo della terra e degli ulivi, sorge un casale esclusivo degli anni '30, firmato dall'Opera Nazionale Combattenti: una testimonianza autentica di storia, fascino e tradizione.
Questa dimora, unica nel suo genere, custodisce intatte le rifiniture originali che raccontano di un'epoca raffinata, in cui l'architettura rurale si sposava con l'eleganza delle forme semplici e proporzionate.
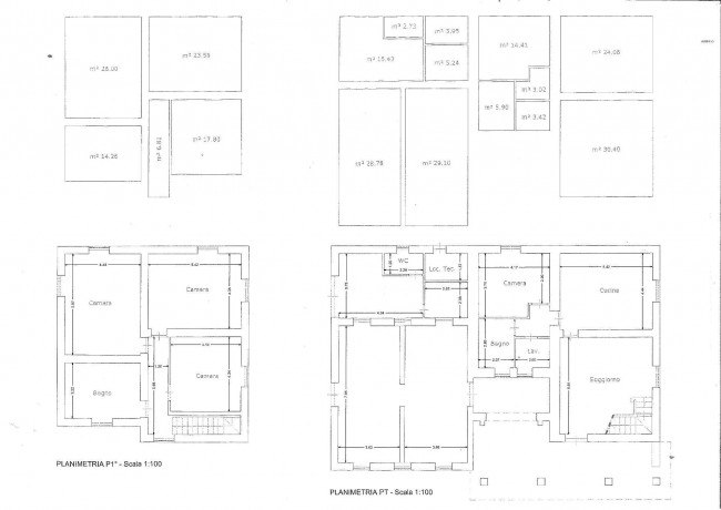
Disposto su due livelli, il casale accoglie ambienti ampi, luminosi e ricchi di carattere - spazi che respirano ancora l'atmosfera sincera delle case di un tempo.
All'esterno, un terreno di circa 5.400 mq circonda la proprietà come un abbraccio verde, punteggiato da ulivi e alberi da frutto che scandiscono le stagioni con i loro colori e profumi. Le pertinenze agricole completano la cornice, offrendo infinite possibilità a chi desidera vivere in armonia con la natura o realizzare un sogno ricettivo nel cuore del Lazio.
Questo casale non è solo un'abitazione, ma un'esperienza di vita, un rifugio per chi cerca bellezza, autenticità ed esclusività.
Un luogo dove il tempo sembra essersi fermato, pronto ad accogliere nuove storie, nuovi sguardi, nuove emozioni.
"La nostra Agenzia mette a vostra disposizione tutti i servizi necessari per procedere ad una compravendita in totale sicurezza grazie ad una collaborazione con diversi studi professionali: consulenza creditizia in sede previo appuntamento, servizi tecnico-catastali-urbanistici con tecnici affiliati, consulenza notarile con possibilità di rogito in sede, preventivi di ristrutturazione con ditte specializzate e certificate.
"I DATI INDICATI NON COSTITUISCONO ELEMENTO CONTRATTUALE"
Per questo immobile puoi contattare:
Futura
